Skip to main content
Tin tức

Dự án thi công bếp tại Nhà gà T3 sân bay Tân Sơn Nhất

Bếp Nguyên Khôi Bếp Nguyên Khôi
6 Lượt xem
0 Bình luận

Dự án thi công bếp ăn Phòng chờ thương gia Vietnam Airlines tại Nhà ga T3 – Sân bay Tân Sơn Nhất do Nguyên Khôi trực tiếp thiết kế và thi công, ứng dụng mô hình bếp một chiều hiện đại, đáp ứng tiêu chuẩn vận hành và an toàn nghiêm ngặt của ngành hàng không, sẵn sàng phục vụ số lượng lớn suất ăn chất lượng cao mỗi ngày.

Sân bay Tân Sơn Nhất
Sân bay Tân Sơn Nhất

Thông tin dự án

  • Chủ đầu tư: Sân bay Tân Sơn Nhất
  • Hạng mục: Thiết kế và thi công lắp đặt thiết bị bếp sân bay
  • Diện tích: 60m²
  • Địa chỉ: Nhà ga T3, Sân bay Tân Sơn Nhất, TP. Hồ Chí Minh
  • Phương án thi công: Mô hình bếp một chiều

Giới thiệu về Sân bay Tân Sơn Nhất

Sân bay Tân Sơn Nhất là cảng hàng không quốc tế lớn và nhộn nhịp hàng đầu Việt Nam, giữ vai trò cửa ngõ giao thương và du lịch quan trọng của khu vực phía Nam.

Nhà ga T3 Sân Bay Tân Sơn Nhất
Nhà ga T3 Sân Bay Tân Sơn Nhất

Với lưu lượng hàng chục triệu lượt hành khách mỗi năm, sân bay không ngừng được đầu tư mở rộng hạ tầng, trong đó Nhà ga T3 được xây dựng nhằm nâng cao năng lực khai thác, tối ưu trải nghiệm hành khách và đáp ứng các tiêu chuẩn vận hành quốc tế ngày càng khắt khe.

Việc đầu tư đồng bộ các khu chức năng, đặc biệt là hệ thống bếp phục vụ phòng chờ thương gia sẽ góp phần hoàn thiện chất lượng dịch vụ đồng nhất tại sân bay trọng điểm này.

Thiết kế, cung cấp thiết bị bếp cho Nhà ga T3

Bếp Nguyên Khôi vinh dự được lựa chọn là đơn vị tư vấn, thiết kế và thi công khu bếp cho Phòng chờ thương gia nhà ga T3 sân bay Tân Sơn Nhất. Phương án bố trí được nghiên cứu kỹ lưỡng, bảo đảm vận hành khép kín một chiều, phân khu rõ ràng giữa các khu vực nhằm đáp ứng tối đa công suất phục vụ.

# Khảo sát, lên phương án thiết kế

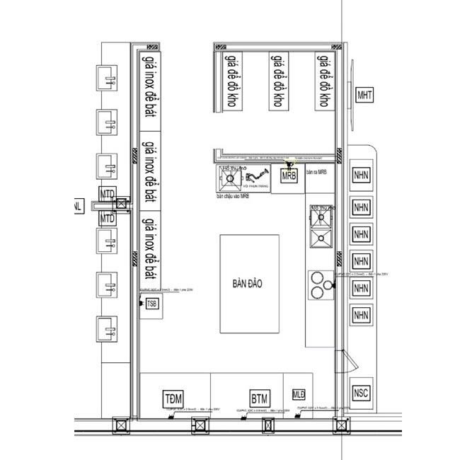
Bản vẽ dự án
Bản vẽ dự án

Ngay khi tiếp nhận dự án, đội ngũ kỹ thuật Bếp Nguyên Khôi đã trực tiếp khảo sát mặt bằng, đo đạc, đánh giá hệ thống điện nước và thoát khí để đưa ra giải pháp phù hợp nhất. Từ đó, bản vẽ layout được triển khai, giúp tối ưu hóa luồng di chuyển, thao tác và an toàn lao động trong suốt quá trình vận hành bếp.

# Triển khai thi công, lắp đặt

Vận chuyển thiết bị 1
Vận chuyển thiết bị 1
Vận chuyển thiết bị 2
Vận chuyển thiết bị 2
Vận chuyển thiết bị 3
Vận chuyển thiết bị 3
Tiến hành thi công
Tiến hành thi công
Tiến hành thi công 2
Tiến hành thi công 2

Sau khi thống nhất thiết kế, Bếp Nguyên Khôi tiến hành thi công và lắp đặt đồng bộ các thiết bị bếp công nghiệp gồm:

Khu Nấu

  • Bếp á 2 họng
  • Bếp xào điện từ
  • Nồi nấu nước lèo
  • Chậu rửa đôi
  • Máy hút mùi

Khu lưu trữ

  • Tủ mát 2 cánh
  • Tủ đông 2 cánh
  • Tủ mát bàn chặt
  • Tủ 4 cánh inox để đồ khô
  • Giá để kho

Khu chia thức ăn

  • Bàn 2 kệ dưới

Khu dọn rửa

  • Tủ sấy bát
  • Máy rửa bát
  • Chậu rửa
  • Thùng rác di động

# Hình ảnh bếp hoàn thiện

Ảnh hoàn thiện 1
Ảnh hoàn thiện 1
Ảnh hoàn thiện 2
Ảnh hoàn thiện 2

Trong quá trình triển khai, đội ngũ Nguyên Khôi luôn phối hợp chặt chẽ với chủ đầu tư để đảm bảo mọi hạng mục thi công đúng yêu cầu kỹ thuật. Sau khi bàn giao, khu bếp vận hành ổn định, đáp ứng tốt công suất phục vụ số lượng lớn suất ăn mỗi ca.

Nguyên Khôi – Đơn vị thi công thiết kế bếp công nghiệp uy tín hàng đầu

Nguyên Khôi là một trong số những đơn vị thi công thiết kế bếp công nghiệp uy tín số 1 tại Việt Nam. Với nhiều năm kinh nghiệm hoạt động trong lĩnh vực, Nguyên Khôi đã đồng hành và hợp tác cùng rất nhiều doanh nghiệp lớn nhỏ trên cả nước, nhận được vô vàn feedback và đánh giá tích cực.

Đội ngũ thi công Nguyên Khôi
Đội ngũ thi công Nguyên Khôi

Tất cả các dòng thiết bị bếp công nghiệp tại Nguyên Khôi đều được bảo hành chính hãng lên đến 12 tháng, hỗ trợ sửa chữa, bảo dưỡng trọn đời. Ngoài ra, Nguyên Khôi cũng có mức chiết khấu, giảm giá cao theo từng gói ngân sách, đặc biệt tặng 100% gói thiết kế bếp khi lựa chọn dịch vụ thi công bếp công nghiệp như:

  • Từ 100,000,000 – 150,000,000 VNĐ GIẢM 5% HĐ
  • Từ 150,000,000 – 200,000,000 VNĐ GIẢM 6% HĐ
  • Từ 200,000,000 – 300,000,000 VNĐ GIẢM 8% HĐ
  • Trên 300,000,000 VNĐ GIẢM 10% HĐ

Liên hệ ngay Hotline 0928 988 788 để được Bếp Nguyên Khôi tư vấn chi tiết gói thi công bếp ăn công nghiệp phù hợp với mô hình đơn vị! 

0 đánh giá cho Dự án thi công bếp tại Nhà gà T3 sân bay Tân Sơn Nhất

Chưa có
đánh giá nào
5
0% | 0 đánh giá
4
0% | 0 đánh giá
3
0% | 0 đánh giá
2
0% | 0 đánh giá
1
0% | 0 đánh giá

Chưa có đánh giá nào.

Hỏi đáp

Không có bình luận nào

Đánh giá Dự án thi công bếp tại Nhà gà T3 sân bay Tân Sơn Nhất
Gửi ảnh thực tế
0 ký tự (Tối thiểu 10)
Bạn cảm thấy thế nào về sản phẩm? (Chọn sao)
Liên hệ tư vấn thiết kế
0928 988 788
Gọi ngay để được tư vấn trực tiếp
Đặt lịch tư vấn
Bài viết liên quan
Dự án thi công bếp Bệnh viện Nội tiết Trưng ương TPHCM
Dự án thi công bếp ăn Bệnh Viện Nội tiết TW Thành phố Hồ Chí Minh
Dự án thi công bếp ăn công nghiệp tại Bệnh viện Nội tiết Trung ương TP.HCM do Nguyên Khôi thực hiện, được triển khai theo mô hình bếp một chiều tiêu chuẩn y tế, sử dụng thiết bị inox chuyên dụng, đảm bảo vận hành an toàn, vệ sinh nghiêm ngặt và phục vụ hiệu
dự án thi công bếp cục viễn thám quốc gia
Dự án thi công bếp tại Cục Viễn thám Quốc gia
Vừa qua, Bếp Nguyên Khôi đã tiến hành thi công, lắp đặt các thiết bị bếp công nghiệp cho Cục Viễn thám Quốc gia – trực thuộc Bộ Tài Nguyên và Môi Trường. Toàn bộ sản phẩm, thiết bị được bàn giao đúng thời hạn và mẫu mã đã ký kết tại hợp đồng. Cùng
dự án thi công bếp công an gia lâm
Dự án thi công bếp tại Trụ sở công an huyện Gia Lâm
Trong suốt hành trình đồng hành cùng những căn bếp của các cơ sở công lập, Bếp Nguyên Khôi vinh dự trở thành đơn vị trực tiếp thi công dự án thi bếp ăn cơ quan tại Trụ sở công an huyện Gia Lâm, thành phố Hà Nội. Không gian bếp được thiết kế hiện
Dự án thi công bếp Công ty TNHH HS Hyosung Vina Core Materials
Nguyên Khôi vinh dự được chọn là đơn vị triển khai thi công hoàn thiện thiết kế bếp ăn công nghiệp cho Công ty TNHH HS Hyosung Vina Core Materials. Không gian khu bếp được thiết kế vô cùng rộng rãi, hiện đại và vô cùng chuyên nghiệp đáp ứng đúng nhu cầu của khách
Tư vấn
Xin chào!
Bạn đang tìm hiểu "Bếp Nguyên Khôi"
Nếu cần tôi sẽ gửi thêm thông tin cho bạn!
3