Skip to main content
Tin tức

Dự án thi công bếp Công ty TNHH HS Hyosung Vina Core Materials

Bếp Nguyên Khôi Bếp Nguyên Khôi
112 Lượt xem
0 Bình luận

Nguyên Khôi vinh dự được chọn là đơn vị triển khai thi công hoàn thiện thiết kế bếp ăn công nghiệp cho Công ty TNHH HS Hyosung Vina Core Materials. Không gian khu bếp được thiết kế vô cùng rộng rãi, hiện đại và vô cùng chuyên nghiệp đáp ứng đúng nhu cầu của khách hàng như đã đề ra trong hợp đồng.

Thông tin dự án

  • Chủ đầu tư: Công ty TNHH HS Hyosung Vina Core Materials
  • Hạng mục: Cung cấp thiết bị và thi công lắp dựng bếp ăn cán bộ , công nhân nhà máy
  • Địa chỉ: Lô B7, Đường N2, Khu Công Nghiệp Phú Mỹ II, Phường Tân Phước, Thị xã Phú Mỹ, Tỉnh Bà Rịa – Vũng Tàu.
  • Tổng diện tích lắp đặt: 100m2
  • Phong cách: Bếp 1 chiều

Giới thiệu về công ty TNHH HS Hyosung Vina Core Materials

Công Ty TNHH Hyosung Vina Core Materials là một công ty đa quốc gia lớn cung cấp các nguyên liệu chất lượng cao và dịch vụ để thị trường công nghiệp. Tự hào đảm bảo sự thành công của khách hàng bằng cách cung cấp các sản phẩm và dịch vụ chất lượng tốt nhất.

Công Ty TNHH Hyosung Vina Core Materials được thành lập năm 2023 với mục đích cung cấp các nguyên liệu chất lượng cao và dịch vụ để thị trường công nghiệp. Công ty luôn cố gắng hỗ trợ khách hàng của mình bằng cách cung cấp các sản phẩm và dịch vụ chất lượng tốt nhất.

Với đội ngũ nhân viên chuyên nghiệp và nhiều năm kinh nghiệm trong lĩnh vực cung cấp nguyên liệu chất lượng cao, Công Ty TNHH Hyosung Vina Core Materials luôn sẵn sàng để đáp ứng nhu cầu của khách hàng.

Thiết kế, cung cấp thiết bị bếp cho Công ty TNHH HS Hyosung Vina Core Materials

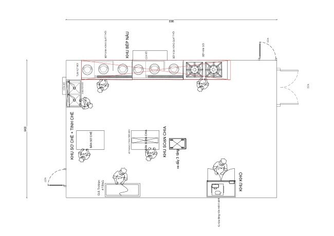
# Khảo sát, lên phương án thiết kế

Bản vẽ gợi ý
Bản vẽ gợi ý

# Triển khai thi công, lắp đặt

Nguyên Khôi rất vinh dự và tự hào khi trở thành đơn vị thi công, thiết kế bếp ăn cho công ty TNHH HS Hyosung Vina Core Materials. Việc đầu tư khu bếp là vô cùng cần thiết, phục vụ cho cán bộ, nhân viên và khách du lịch.

Tập kết thiết bị
Tập kết thiết bị
Vận chuyển thiết bị
Vận chuyển thiết bị

Những thiết bị bếp công nghiệp được đầu tư bao gồm:

Nhà bếp

  • Tum hút , quạt , ống gió , lắp đặt tum , ống gió
  • Bếp á đôi công nghiệp dùng gas
  • Bếp hầm đơn công nghiệp dùng gas
  • Tủ cơm loại 24 khay dùng điện và gas có liền điều khiển
  • Bàn inox có giá dưới liền
  • Nồi nấu bằng điện 100L

Khu rửa

  • Tủ sấy dao thớt cánh kính
  • Tủ sấy khay 2 cánh kính
  • Tủ sấy ủng/đồng phục
  • Chậu rửa hố lớn
  • Bàn inox có gáy giá dưới đan song
  • Kệ phẳng 4 tầng
  • Kệ thanh 4 tầng
  • Xe vận chuyển thực phẩm 1 tầng

Kho thực phẩm khô

  • Tủ đông đứng 4 cánh làm lạnh quạt gió
  • Tủ mát đứng 4 cánh làm lạnh quạt gió

Khu sơ chế rau củ quả

  • Bàn inox có gáy có giá phẳng dưới
  • Chậu rửa ba hố
  • Chậu rửa đôi
  • Bàn inox có gáy có giá phẳng dưới
  • Bàn chậu rửa đơn lệch trái

Khu soạn chia

  • Tủ giữ nóng cơm và canh
  • Xe đẩy gia vị 3 tầng
  • Bàn inox phẳng 2 tầng có bánh xe

# Hình ảnh bếp hoàn thiện

Trong quá trình triển khai, Bếp Nguyên Khôi nhận được sự hợp tác chặt chẽ từ phía chủ đầu tư. Dự án đã được bàn giao đúng tiến độ, toàn bộ hệ thống thiết bị vận hành ổn định, đáp ứng tốt nhu cầu của doanh nghiệp.

 

Nguyên Khôi – Đơn vị thi công thiết kế bếp công nghiệp uy tín hàng đầu

Nguyên Khôi là một trong số những đơn vị thi công thiết kế bếp công nghiệp uy tín số 1 tại Việt Nam. Với nhiều năm kinh nghiệm hoạt động trong lĩnh vực, Nguyên Khôi đã đồng hành và hợp tác cùng rất nhiều doanh nghiệp lớn nhỏ trên cả nước, nhận được vô vàn feedback và đánh giá tích cực.

Đội ngũ thi công Nguyên Khôi
Đội ngũ thi công Nguyên Khôi

Tất cả các dòng thiết bị bếp công nghiệp tại Nguyên Khôi đều được bảo hành chính hãng lên đến 12 tháng, hỗ trợ sửa chữa, bảo dưỡng trọn đời. Ngoài ra, Nguyên Khôi cũng có mức chiết khấu, giảm giá cao theo từng gói ngân sách, đặc biệt tặng 100% gói thiết kế bếp khi lựa chọn dịch vụ thi công bếp công nghiệp như:

  • Từ 100,000,000 – 150,000,000 VNĐ GIẢM 5% HĐ
  • Từ 150,000,000 – 200,000,000 VNĐ GIẢM 6% HĐ
  • Từ 200,000,000 – 300,000,000 VNĐ GIẢM 8% HĐ
  • Trên 300,000,000 VNĐ GIẢM 10% HĐ

Liên hệ ngay Hotline 0928 988 788 để được Bếp Nguyên Khôi tư vấn chi tiết gói thi công bếp ăn công nghiệp phù hợp với mô hình đơn vị! 

0 đánh giá cho Dự án thi công bếp Công ty TNHH HS Hyosung Vina Core Materials

Chưa có
đánh giá nào
5
0% | 0 đánh giá
4
0% | 0 đánh giá
3
0% | 0 đánh giá
2
0% | 0 đánh giá
1
0% | 0 đánh giá

Chưa có đánh giá nào.

Hỏi đáp

Không có bình luận nào

Đánh giá Dự án thi công bếp Công ty TNHH HS Hyosung Vina Core Materials
Gửi ảnh thực tế
0 ký tự (Tối thiểu 10)
Bạn cảm thấy thế nào về sản phẩm? (Chọn sao)
Liên hệ tư vấn thiết kế
0928 988 788
Gọi ngay để được tư vấn trực tiếp
Đặt lịch tư vấn
Bài viết liên quan
Dự án thi công bếp Bệnh viện Nội tiết Trưng ương TPHCM
Dự án thi công bếp ăn Bệnh Viện Nội tiết TW Thành phố Hồ Chí Minh
Dự án thi công bếp ăn công nghiệp tại Bệnh viện Nội tiết Trung ương TP.HCM do Nguyên Khôi thực hiện, được triển khai theo mô hình bếp một chiều tiêu chuẩn y tế, sử dụng thiết bị inox chuyên dụng, đảm bảo vận hành an toàn, vệ sinh nghiêm ngặt và phục vụ hiệu
Dự án thi công nhà ga T3 sân bay Tân Sơn Nhất
Dự án thi công bếp tại Nhà gà T3 sân bay Tân Sơn Nhất
Dự án thi công bếp ăn Phòng chờ thương gia Vietnam Airlines tại Nhà ga T3 – Sân bay Tân Sơn Nhất do Nguyên Khôi trực tiếp thiết kế và thi công, ứng dụng mô hình bếp một chiều hiện đại, đáp ứng tiêu chuẩn vận hành và an toàn nghiêm ngặt của ngành hàng
dự án thi công bếp cục viễn thám quốc gia
Dự án thi công bếp tại Cục Viễn thám Quốc gia
Vừa qua, Bếp Nguyên Khôi đã tiến hành thi công, lắp đặt các thiết bị bếp công nghiệp cho Cục Viễn thám Quốc gia – trực thuộc Bộ Tài Nguyên và Môi Trường. Toàn bộ sản phẩm, thiết bị được bàn giao đúng thời hạn và mẫu mã đã ký kết tại hợp đồng. Cùng
dự án thi công bếp công an gia lâm
Dự án thi công bếp tại Trụ sở công an huyện Gia Lâm
Trong suốt hành trình đồng hành cùng những căn bếp của các cơ sở công lập, Bếp Nguyên Khôi vinh dự trở thành đơn vị trực tiếp thi công dự án thi bếp ăn cơ quan tại Trụ sở công an huyện Gia Lâm, thành phố Hà Nội. Không gian bếp được thiết kế hiện
Tư vấn
Xin chào!
Bạn đang tìm hiểu "Bếp Nguyên Khôi"
Nếu cần tôi sẽ gửi thêm thông tin cho bạn!
3