Với định hướng xây dựng mô hình Cà phê kết hợp quán ăn hiện đại, chú trọng trải nghiệm thực khách và đảm bảo chất lượng phục vụ ổn định lâu dài, M.E.I Coffee & Tea đã tin tưởng lựa chọn Bếp Nguyên Khôi là đơn vị thiết kế và thi công toàn bộ khu bếp chính. Không chỉ cung cấp thiết bị đạt chuẩn, Nguyên Khôi còn đảm bảo bố trí khoa học, đồng bộ, giúp tối ưu hiệu suất vận hành trong mọi khung giờ cao điểm.
Thông tin dự án
- Tên dự án: Thi công hệ thống bếp quán cà phê M.E.I Coffee & Tea
- Địa điểm: Trảng Bom, Đồng Nai
- Đơn vị triển khai: Bếp Nguyên Khôi
- Thời gian thi công: 5 ngày
- Hạng mục thực hiện: Thiết kế, lắp đặt hệ thống bếp ăn chính bao gồm thiết bị nấu, bàn thao tác, khu rửa và hút mùi

Giới thiệu về M.E.I Coffee & Tea
M.E.I Coffee & Tea là một nhà hàng chuyên phục vụ đồ uống và các món ăn truyền thống với không gian thân thiện, ấm cúng và định hướng vận hành bếp theo chuẩn nhà hàng chuyên nghiệp. Với lưu lượng khách hàng đông đảo vào mỗi bữa trưa và tối, quán đặt ra những yêu cầu rõ ràng về khu bếp:
Bố trí thiết bị gọn gàng, dễ thao tác trong không gian vừa phải
- Tối ưu luồng vận hành từ khâu sơ chế – nấu – ra món – thu dọn
- Đảm bảo an toàn, vệ sinh và dễ bảo trì trong quá trình sử dụng
Thiết kế, cung cấp thiết bị bếp cho M.E.I Coffee & Tea
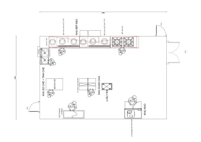
# Khảo sát, lên phương án thiết kế
Sau khi khảo sát và phân tích mô hình thực tế, Bếp Nguyên Khôi đã đưa ra giải pháp thiết kế phù hợp với công suất phục vụ của M.E.I Coffee & Tea, vừa tiết kiệm diện tích mà vẫn đáp ứng đầy đủ công năng vận hành bếp chuyên nghiệp.


# Triển khai thi công, lắp đặt
Hệ thống bếp tại M.E.I Coffee & Tea được thiết kế theo dạng bếp mở với phân khu rõ ràng, đảm bảo sạch sẽ, tiện lợi và hiệu quả trong mọi thao tác nấu nướng. Toàn bộ thiết bị đều được lắp đặt đồng bộ, chuẩn kích thước theo không gian thực tế. Đảm bảo dễ vận hành, an toàn khi sử dụng và phù hợp với tần suất phục vụ cao của quán.
Thiết bị được Bếp Nguyên Khôi cung cấp bao gồm:
- 1 Kệ đựng bát đĩa
- 2 bàn phẳng vai thấp
- 1 bàn phẳng vai cao
- 1 bếp á 3 họng
- 1 tum hút mùi 1m5
- 1 chậu rửa 2 bồn rộng tích hợp giá kệ trên bồn



# Hình ảnh bếp hoàn thiện
Trong quá trình triển khai, Bếp Nguyên Khôi nhận được sự hợp tác chặt chẽ từ phía chủ đầu tư. Dự án đã được bàn giao đúng tiến độ, toàn bộ hệ thống thiết bị vận hành ổn định, đáp ứng tốt nhu cầu kinh doanh của đơn vị.


Nguyên Khôi – Đơn vị thi công thiết kế bếp công nghiệp uy tín hàng đầu
Bếp Nguyên Khôi tự hào là lựa chọn tin cậy của hàng trăm khách hàng trên toàn quốc trong lĩnh vực thiết kế và thi công bếp công nghiệp. Với nhiều năm kinh nghiệm, chúng tôi mang đến giải pháp tổng thể từ khâu thiết kế layout, cung cấp thiết bị cho đến thi công lắp đặt đồng bộ.

Tất cả thiết bị do Nguyên Khôi cung cấp đều được:
- Bảo hành chính hãng 12 tháng
- Hỗ trợ bảo dưỡng, sửa chữa trọn đời
- Tặng 100% chi phí thiết kế bản vẽ AutoCAD khi thi công trọn gói
Ưu đãi theo gói ngân sách:
- Từ 100,000,000 – 150,000,000 VNĐ: Giảm 5% hợp đồng
- Từ 150,000,000 – 200,000,000 VNĐ: Giảm 6% hợp đồng
- Từ 200,000,000 – 300,000,000 VNĐ: Giảm 8% hợp đồng
- Trên 300,000,000 VNĐ: Giảm 10% hợp đồng
Nếu bạn đang tìm kiếm đơn vị thi công bếp quán Cà phê kết hợp phục vụ ăn uống chuyên nghiệp như M.E.I Coffee & Tea, hãy liên hệ ngay với Bếp Nguyên Khôi qua số hotline 0928 988 788 để được tư vấn và khảo sát tận nơi miễn phí.
