Dự án thi công bếp tiệm cơm thịt nướng Kaori tại Cầu Gỗ, quận Hoàn Kiếm (Hà Nội) do Bếp Nguyên Khôi trực tiếp khảo sát, thiết kế và thi công. Công trình được triển khai nhằm xây dựng khu bếp gọn gàng, vận hành hiệu quả, đáp ứng tốt nhu cầu phục vụ cơm suất và các món nướng trong điều kiện mặt bằng phố trung tâm có lưu lượng khách cao.
Thông tin dự án
- Chủ đầu tư: Tiệm cơm thịt nướng Kaori
- Hạng mục: Thiết kế, thi công lắp đặt hệ thống bếp quán ăn
- Mô hình bếp: Bếp một chiều
- Địa chỉ: Phố Cầu Gỗ, quận Hoàn Kiếm, Hà Nội
- Diện tích: 20m2
- Đơn vị thi công: Bếp Nguyên Khôi

Giới thiệu về bếp tiệm cơm thịt nướng Kaori
Tiệm cơm thịt nướng Kaori là mô hình quán ăn phục vụ cơm suất và các món nướng, tọa lạc tại khu vực Cầu Gỗ – trung tâm phố cổ Hoàn Kiếm với mật độ khách cao, đặc biệt vào các khung giờ cao điểm.
Do đặc thù mặt bằng kinh doanh tại phố trung tâm hạn chế về diện tích, khu bếp cần được thiết kế gọn gàng, khoa học nhưng vẫn đảm bảo công suất phục vụ ổn định và vệ sinh an toàn thực phẩm.

Vì vậy, Kaori đã lựa chọn Bếp Nguyên Khôi là đơn vị đồng hành triển khai thi công hệ thống bếp, nhằm tối ưu không gian, nâng cao hiệu quả vận hành và đáp ứng tốt nhu cầu phục vụ thực tế của quán.
Thiết kế, cung cấp thiết bị bếp cho bếp tiệm cơm
1. Khảo sát, lên phương án thiết kế
Sau khi tiếp nhận yêu cầu từ chủ đầu tư, Bếp Nguyên Khôi tiến hành khảo sát trực tiếp mặt bằng tại khu vực Cầu Gỗ, quận Hoàn Kiếm. Đội ngũ kỹ thuật tập trung đánh giá diện tích sử dụng, kết cấu không gian, vị trí cấp thoát nước, hệ thống điện và hướng di chuyển của nhân sự bếp.

Từ đó, Nguyên Khôi xây dựng phương án bếp một chiều phù hợp với mô hình cơm suất và thịt nướng, bố trí các khu vực sơ chế, tẩm ướp, chế biến và ra món theo luồng vận hành liền mạch, giúp tiết kiệm diện tích, hạn chế chồng chéo và đảm bảo vệ sinh an toàn thực phẩm trong quá trình hoạt động.
2. Triển khai thi công, lắp đặt
Sau khi phương án thiết kế được thống nhất, Bếp Nguyên Khôi tiến hành sản xuất và cung cấp thiết bị bếp theo đúng bản vẽ đã phê duyệt. Quá trình thi công, lắp đặt được triển khai đồng bộ, đảm bảo đúng kỹ thuật, đúng tiến độ và phù hợp với điều kiện mặt bằng thực tế của quán.

Các thiết bị bếp công nghiệp được lắp đặt bao gồm:
- Bàn sơ chế có giá dưới
- Bếp Á 1 họng dùng gas
- Bếp chiên nhúng dầu
- Tủ mát bàn chặt 2 cánh
- Tủ mát 1 cánh kính
- Chậu rửa inox 1 hố lệch trái
- Tum hút mùi và hệ thống dẫn khói
- Giá úp bát treo tường



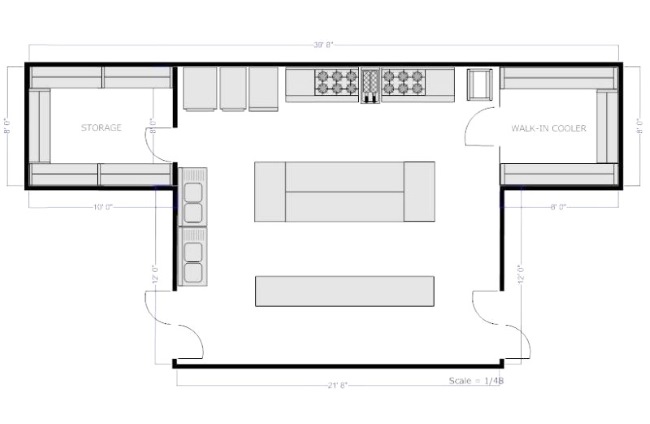
3. Hình ảnh bếp hoàn thiện
Sau khi hoàn thiện thi công, khu bếp tiệm cơm thịt nướng Kaori được bàn giao và đưa vào sử dụng đúng tiến độ. Không gian bếp gọn gàng, bố trí hợp lý, đáp ứng tốt công suất phục vụ trong giờ cao điểm và hỗ trợ đội ngũ nhân sự vận hành ổn định, hiệu quả.

Hình ảnh thực tế của dự án cho thấy sự đồng bộ trong thiết kế, tính thực tiễn trong thi công và khả năng tối ưu không gian của Bếp Nguyên Khôi đối với các mô hình quán ăn tại khu vực trung tâm.
Nguyên Khôi – Đơn vị thi công thiết kế bếp công nghiệp uy tín hàng đầu
Bếp Nguyên Khôi được biết đến là một trong những đơn vị tiên phong trong lĩnh vực thiết kế và thi công bếp công nghiệp tại Việt Nam. Với nhiều năm kinh nghiệm triển khai thực tế, chúng tôi đã đồng hành cùng hàng trăm doanh nghiệp, từ nhà hàng, khách sạn, trường học, bệnh viện cho đến các khu công nghiệp lớn. Mỗi công trình bàn giao đều là sự kết hợp giữa tư duy thiết kế tối ưu, giải pháp công năng khoa học và thiết bị đạt chuẩn an toàn.

Tất cả thiết bị bếp công nghiệp tại Nguyên Khôi đều được sản xuất từ inox 304 cao cấp, bảo hành chính hãng lên tới 12 tháng và hỗ trợ bảo dưỡng trọn đời. Đặc biệt, chúng tôi miễn phí 100% gói thiết kế layout khi khách hàng lựa chọn dịch vụ thi công trọn gói.
Không chỉ đảm bảo chất lượng thiết bị, Nguyên Khôi còn mang đến chính sách giá linh hoạt, nhiều ưu đãi hấp dẫn:
- 100 – 150 triệu VNĐ: Giảm 5% hợp đồng
- 150 – 200 triệu VNĐ: Giảm 6% hợp đồng
- 200 – 300 triệu VNĐ: Giảm 8% hợp đồng
- Trên 300 triệu VNĐ: Giảm 10% hợp đồng
Liên hệ ngay Hotline 0928 988 788 để được chuyên gia Nguyên Khôi tư vấn trực tiếp và đồng hành cùng bạn trong mọi dự án bếp công nghiệp.
